Dom Wejherowo (104054)

Cena 1 690 000 PLN

Cena za m2 6 060 PLN

Powierzchnia 278.9 m2

Rynek wtórny

GOTOWA INWESTYCJA !!! 5 MIESZKAŃ I LOKAL USŁUGOWY

Na sprzedaż kamienica w ścisłym centrum miasta Wejherowa o powierzchni 278,90m2 usadowiona na działce o powierzchni 343m2 przy ulicy Św. Jana.

OPIS NIERUCHOMOŚCI:
Budynek 4-kondygnacyjny zrealizowany technologią tradycyjną. Ogród dla mieszkańców o powierzchni 185m2. Obiekt nie wymaga nakładów finansowych. Możliwość zakupu z przejęciem najemców.

SKŁAD NIERUCHOMOŚCI:
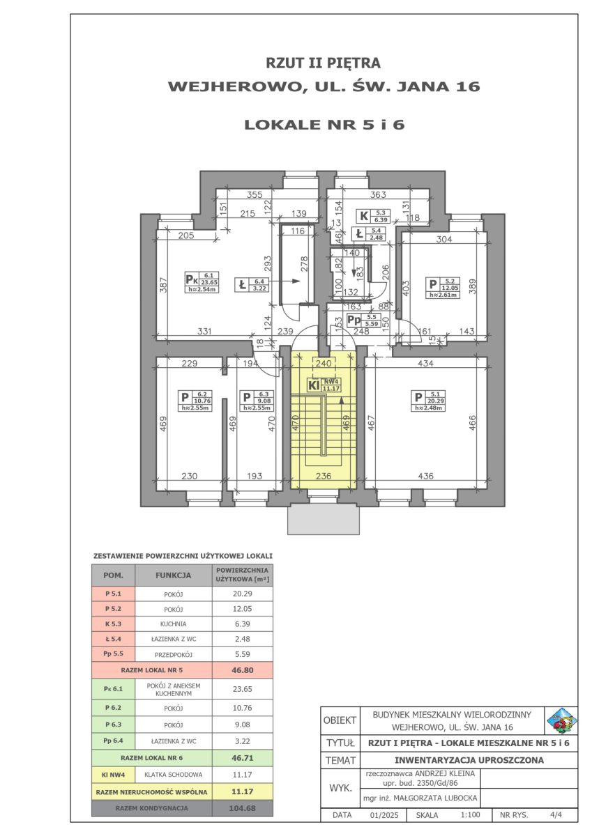
5 MIESZKAŃ : lokale wyodrębnione (gotowa dokumentacja)
- mieszkania 2-pokojowe z odrębną kuchnią i łazienką
Powierzchnie: 47,74m2; 47,38m2; 49,99m2; 46,8m2; 46,71m2.
Piwnica: pomieszczenia gospodarcze 9,75m2; 2,94m2; 2,84m2; 1,70m2; 3,51m2; 2,54m2; 2,84m2; 0,58m2, pralnia 6,79m2; komunikacja 5,65m2.

LOKAL USŁUGOWY: powierzchnia 40,28m2, zlokalizowany na parterze z wejściem bezpośrednio z ulicy, drugie wejście z klatki schodowej. Wynajęty na punkt krawiecki.

OGRZEWANIE:
gazowe - kocioł gazowy dwufunkcyjny

MEDIA: Energia, woda, kanalizacja, gaz

LOKALIZACJA:
Cała infrastruktura handlowo usługowa w zasięgu ręki. Bezpośrednio przy nieruchomości pieszy ciąg - łącznik pomiędzy Placem Jakuba Wejhera a parkiem.

KOMUNIKACJA:
Przystanki autobusowe MZK przed budynkiem. SKM 5 minut pieszo.

ZAPRASZAMY !!!

Lokalizacja

powiat: wejherowski

gmina: Wejherowo

miejscowość: Wejherowo

ulica: św. Jana

Podobne oferty

Zapraszamy do współpracy

Jesteśmy do Twojej dyspozycji

Karol Lademann
Karol Lademann licencja numer 20423
Małgorzata Biwer
Małgorzata Biwer licencja numer 24974

więcej informacji

Opinie o nas

Skontaktuj się z nami!

Karol Lademann
Karol Lademann licencja numer 20423
Małgorzata Biwer
Małgorzata Biwer licencja numer 24974
W celu świadczenia usług na najwyższym poziomie stosujemy pliki cookies. Korzystanie z naszej witryny oznacza, że będą one zamieszczane w Państwa urządzeniu. W każdym momencie można dokonać zmiany ustawień Państwa przeglądarki. Zobacz politykę cookies.